🏡 DZIAŁKI BUDOWLANE W POŁCZYNIE-ZDROJU – INWESTYCJA W PRZYSZŁOŚĆ! 🏡
Jeśli chcesz mieć „dwa kroki” do sanatorium w „Kurorcie z duszą”, widok na Park Zdrojowy i spektakularną przyrodniczo okolicę – nie ma lepszego wyboru. Gmina Połczyn-Zdrój przygotowuje się do sprzedaży kolejnych działek budowlanych na powstającym superatrakcyjnym osiedlu przy ul. Powstańców Warszawskich. To doskonałe okazje w dobie rosnących cen nieruchomości i galopującej inflacji, ale także w porównaniu z cenami działek w okolicznych miejscowościach. Aktualnie trwa wycena poszczególnych działek.
Połczyn-Zdrój to jedno z najstarszych polskich uzdrowisk, słynące z wyjątkowego mikroklimatu i leczniczych właściwości. Jego sercem jest malowniczy Park Zdrojowy – zielona oaza, gdzie można odpocząć i cieszyć się świeżym powietrzem. Ten 80-hektarowy, zabytkowy teren zachwyca urokliwymi alejkami, kwietnymi dywanami, altanami oraz wodotryskami. Wśród atrakcji znajduje się także historyczna pijalnia wody „Joasia”. W parku i jego otoczeniu rośnie ponad 60 gatunków drzew i krzewów, tworząc unikalny krajobraz. W pobliskich sklepikach można kupić lokalne specjały i pamiątki związane ze #SzwajcariaPołczyńska. Kilkaset metrów dalej wznosi się XIII-wieczny zamek, który dziś pełni funkcję biblioteki.
📍 Lokalizacja: Połczyn-Zdrój, ul. Powstańców Warszawskich
📏 Powierzchnie: od 1058 m² do 2184 m²
🏡 Przeznaczenie: zabudowa jednorodzinna (MPZP – do 2 kondygnacji, dachy pochyłe, min. 55% powierzchni biologicznie czynnej)
🔌 Media w pobliżu: prąd, woda, kanalizacja, gaz
🚗 Dojazd: wygodny dostęp z ul. Powstańców Warszawskich
Właściciel
Gmina Połczyn-Zdrój
Miejscowy plan zagospodarowania przestrzennego
Uchwała NR LXX/772/2023 Rady Miejskiej w Połczynie-Zdroju z dnia 25 października 2023 r. w sprawie miejscowego planu zagospodarowania przestrzennego miasta Połczyn-Zdrój (Dz. Urzędowy Woj. Zachodniopomorskiego z 2023 r. poz. 5773).
Przeznaczenie terenu w planie zagospodarowania przestrzennego
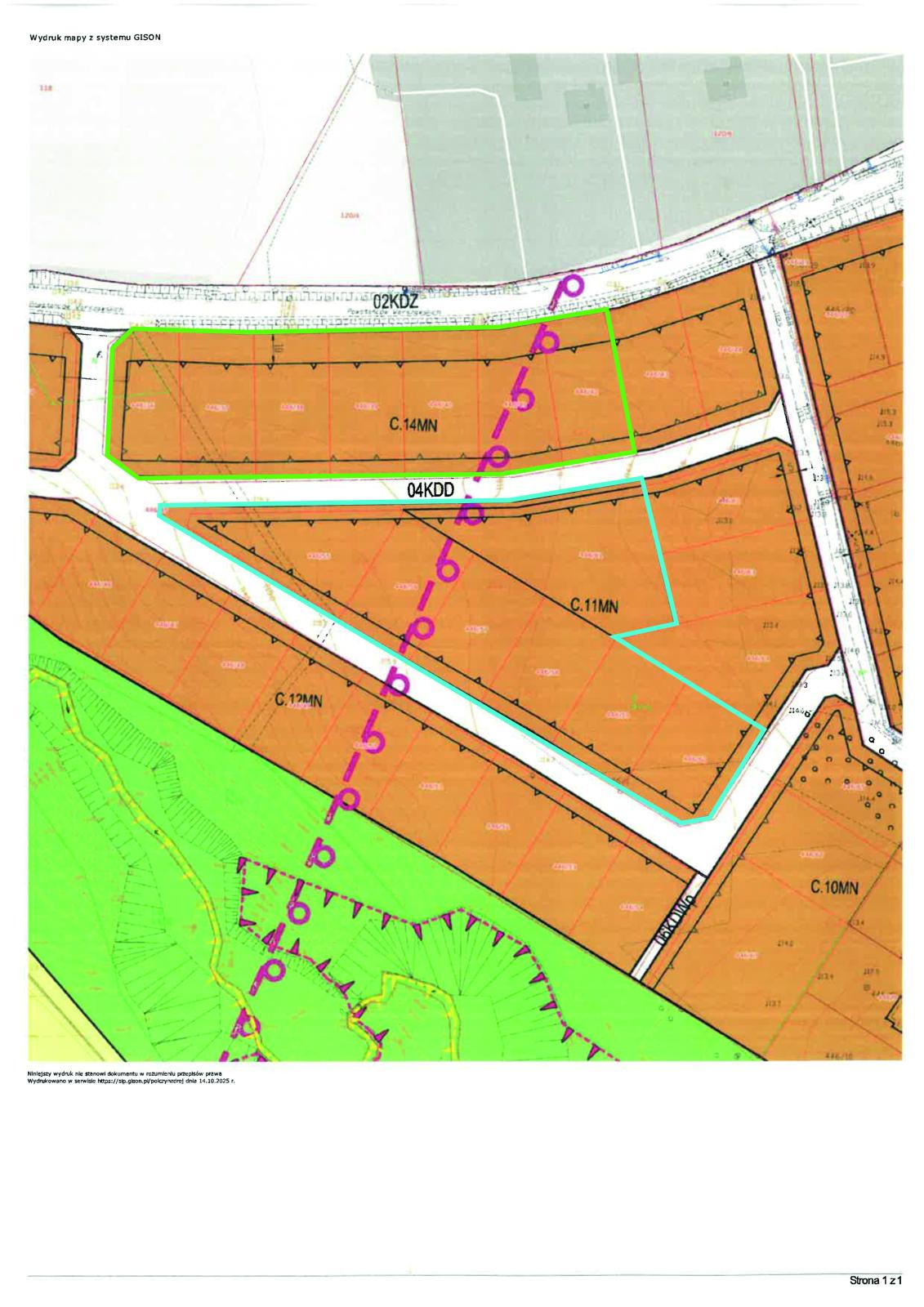
Tereny oznaczone na rysunku planu symbolem C.11MN o powierzchni 0,9087 ha i C.14MN o powierzchni 0,7862 ha:
1) przeznaczenie terenów – tereny zabudowy mieszkaniowej jednorodzinnej;
2) zagospodarowanie terenów i kształtowanie zabudowy:
a) wysokość zabudowy – do 2 kondygnacji nadziemnych (w tym poddasze użytkowe), nie wyżej niż 10 m,
b) geometria dachów – pochyłe,
c) nachylenie połaci dachowych pochyłych – 30o do 45o,
d) powierzchnia zabudowy – nie więcej niż 25 % powierzchni działki budowlanej,
e) powierzchnia biologicznie czynna – min. 55 % powierzchni działki budowlanej,
f) wskaźnik intensywności zabudowy – 0,1 do 0,75,
g) minimalna powierzchnia nowo wydzielanej działki budowlanej – 700 m2;
3) ustalenia komunikacyjne, ustalenia w zakresie infrastruktury technicznej:
a) obsługa komunikacyjna – z ulicy 04KDD,
b) obsługa w zakresie infrastruktury technicznej – zgodnie z § 11;
4) ochrona środowiska, przyrody:
a) tereny chronione akustycznie, jak tereny zabudowy mieszkaniowej jednorodzinnej,
b) tereny położone w granicach otuliny Drawskiego Parku Krajobrazowego,
c) części terenu C.11MN i C.14MN położone na obszarze i terenie górniczym, obowiązują wymogi przepisów odrębnych oraz odpowiednie ustalenia § 4 i §10;
5) ustalenia dotyczące działalności lecznictwa uzdrowiskowego - teren położony w strefie „B” ochrony uzdrowiska, obowiązują zakazy wynikające z przepisów ustawy o lecznictwie uzdrowiskowym, uzdrowiskach i obszarach ochrony uzdrowiskowej oraz o gminach uzdrowiskowych.


Przetargi odbędą się w dniu 26 maja 2026 roku w godzinach podanych w tabeli 8, w sali posiedzeń Rady Miejskiej w Połczynie-Zdroju przy Placu Wolności 3-4.
Do przetargu mogą przystąpić osoby fizyczne i prawne. Cudzoziemcy na zasadach określonych w ustawie z dnia 24 marca 1920 roku o nabywaniu nieruchomości przez cudzoziemców (t.j. w Dz. U. z 2017 r. poz. 2278).
Warunkiem udziału w przetargu jest wniesienie wadium w wysokości określonej w tabeli 10 oraz okazanie Komisji Przetargowej przed otwarciem przetargu:
- dowodu wniesienia wadium,
- w przypadku osób fizycznych - osobiste stawiennictwo w dniu przetargu z dowodem osobistym lub reprezentowane przez pełnomocnika na podstawie pełnomocnictwa,
W przypadku małżonków stawiennictwo obojga lub jednego z nich posiadającego pełnomocnictwo (zgodę) współmałżonka na nabycie nieruchomości
i zaciągnięcie zobowiązań z tego tytułu,
- w przypadku osób prawnych- aktualnego wypisu z rejestru sądowego (datowanego w okresie nie dłuższym niż 3 miesiące przed przetargiem), właściwych notarialnych pełnomocnictw, dowodów osobistych osób reprezentujących podmiot,
- w przypadku cudzoziemców nie będących obywatelami lub przedsiębiorcami państw członkowskich Europejskiego Obszaru Gospodarczego –przyrzeczenia zezwolenia na nabycie nieruchomości(promesy).
Wadium należy wnieść najpóźniej do dnia 22 maja 2026 r. (z zaznaczeniem, której nieruchomości dotyczy) przelewem bankowym środków pieniężnych na rachunek Urzędu Miejskiego w Połczynie-Zdroju PKO BP S A Oddział I w Połczynie Zdroju nr 77 1020 2847 0000 1702 0009 6693.
Za datę wniesienia wadium uważa się datę wpływu środków pieniężnych na rachunek Urzędu Miejskiego w Połczynie-Zdroju.
Wpłaty należy dokonać z takim wyprzedzeniem aby wyżej wymieniona kwota wadium wpłynęła na konto Urzędu w określonym w ogłoszeniu terminie. Wadium osoby wygrywającej przetarg zalicza się na poczet ceny nabycia nieruchomości. Pozostałym uczestnikom wadium zostanie zwrócone po przetargu,
nie później niż przed upływem 3 dni od dnia zamknięcia przetargu. Wadium stanowić będzie zabezpieczenie podpisania umowy notarialnej. Odstąpienie oferenta, który przetarg wygra od podpisania umowy spowoduje przepadek wadium na rzecz organizatora przetargu.
Wysokość postąpienia ustalają uczestnicy przetargu, z tym że nie może być niższe od kwoty podanej w tabeli 10. Wylicytowana cena sprzedaży nieruchomości płatna jest najpóźniej w dniu podpisania umowy notarialnej. Protokoły z przetargów będą podstawą do zawarcia umów notarialnych. Koszty sporządzenia aktu notarialnego, opłaty wieczysto-sądowe oraz koszty okazania granic nieruchomości ponosi nabywca.
Szczegółowych informacji w sprawie przetargu udzielają pracownicy Urzędu Miejskiego Połczynie-Zdroju, Plac Wolności 3-4, pokój nr 206,
tel. (0-94) 36-66-126
https://umig.polczynzdroj.ibip.pl/public/getFile?id=477740

Spacer po połczyńskim Parku Zdrojowym w formie video dostępny jest pod tym linkiem:https://www.youtube.com/watch?v=RhdBgsTfJbg
Klimatyczne mieszkanie w centrum uzdrowiska
76,1-metrowe mieszkanie do własnej aranżacji w centrum uzdrowiska Połczyn-Zdrój. To świetne mieszkanie, ale też ze względu na lokalizację dobre miejsce na gabinet czy kancelarię.
Mieszkanie przy ul. Moniuszki 6/2 ma swój klimat – w pobliżu przebiega brukowana uliczka, świecą stylowe latarnie. Ze względu na cenę i dużą powierzchnię powinno zainteresować młode rodziny. Wymaga remontu, jednak daje to potencjał do zrealizowania w nim wymarzonej, własnej aranżacji. Wewnątrz są piece kaflowe, jednak w budynku wykonano pion gazowy, dlatego lokal można łatwo i tanio do niego podłączyć.
W mieszkaniu o takiej powierzchni można zorganizować praktycznie wszystko: w 4 pokojach zmieści się salon, sypialnia, pokoje dla dzieci i kącik do pracy. Warto pamiętać, że bardzo ciekawe możliwości daje wysokość mieszkania, która wynosi aż 3 metry (dokładnie 290 cm).
Lokal położony jest na I piętrze w dwukondygnacyjnej kamienicy. Składa się z czterech pokoi (ponad 11, 7, 19 i 23 m2), kuchni (6,36 m2), łazienki (3,37 m2), spiżarni (2,58 m2) i przedpokoju (1,64 m2). Większość okien (90%) w pcv.
Budynek kilkanaście miesięcy temu przeszedł generalny remont. Przeprowadzono wymianę i wzmocnienie elementów więźby dachowej, wymianę pokrycia dachowego wraz z obróbkami blacharskimi i orynnowaniem, docieplenie ścian i elewacji, wymianę stolarki okiennej w częściach wspólnych, wykonano nowe schody wraz z remontem klatki schodowej oraz wymianą instalacji elektrycznej.
Mieszkanie jest widne i przestronne, zaś jego usytuowanie w historycznym centrum miasta daje dostęp do infrastruktury handlowo – usługowej i rozrywkowej. Tylko pięćdziesiąt metrów dzieli go od rynku i Urzędu Miejskiego. Tuż obok przebiega ulica Grunwaldzka - to gwarny deptak z kawiarnią, lodziarnią, piekarnią i różnego rodzaju sklepami. Stąd zaledwie kilka minut drogi jest do kina i galerii oraz Parku Zdrojowego.
Połczyn - Zdrój, ul. Polna
Teren zabudowy mieszkaniowej jednorodzinnej- E.47MN
KO2B/000 08068/2 Działka gruntu 208 0,0663 ha

Gmina Połczyn- Zdrój, Bronówko 2/4
Nieruchomość lokalowa- lokal mieszkalny, stanowiący własność Gminy Połczyn- Zdrój
Powierzchnia użytkowa lokalu- 27,56 m2
Struktura lokalu- pokój z wc, pomieszczenie strychowe
Pomieszczenia przynależne: nie występują
Położenie lokalu w budynku- poddasze użytkowe
Rodzaj budynku- budynek mieszkalny, 4-lokalowy, wolnostojący, częściowo podpiwniczony, 1-kondygnac., z poddaszem częściowo użytkowym, wykonany w technologii tradycyjnej, z dachem 2-spadowym, krytym dachówką, pow. zabudowy 180,0 m2, pow. użytk. lokali mieszkalnych 180,24 m2 rok budowy - 1920
Uzbrojenie techniczne lokalu- podejścia wodociągowe, energii elektrycznej, kanalizacji sanitarnej.
Związany z lokalem mieszkalnym udział w nieruchomości wspólnej - 15/100


Gmina Połczyn- Zdrój obr. Sucha działka nr 19/3
Nieruchomość rolna
stanowiąca własność Miasta i Gminy Połczyn- Zdrój
Powierzchnia działki: 0,9400 ha

